Сурчин. Дизайнер интерьера в Белграде Полина Романенкова

Квартира для семьи в Белграде

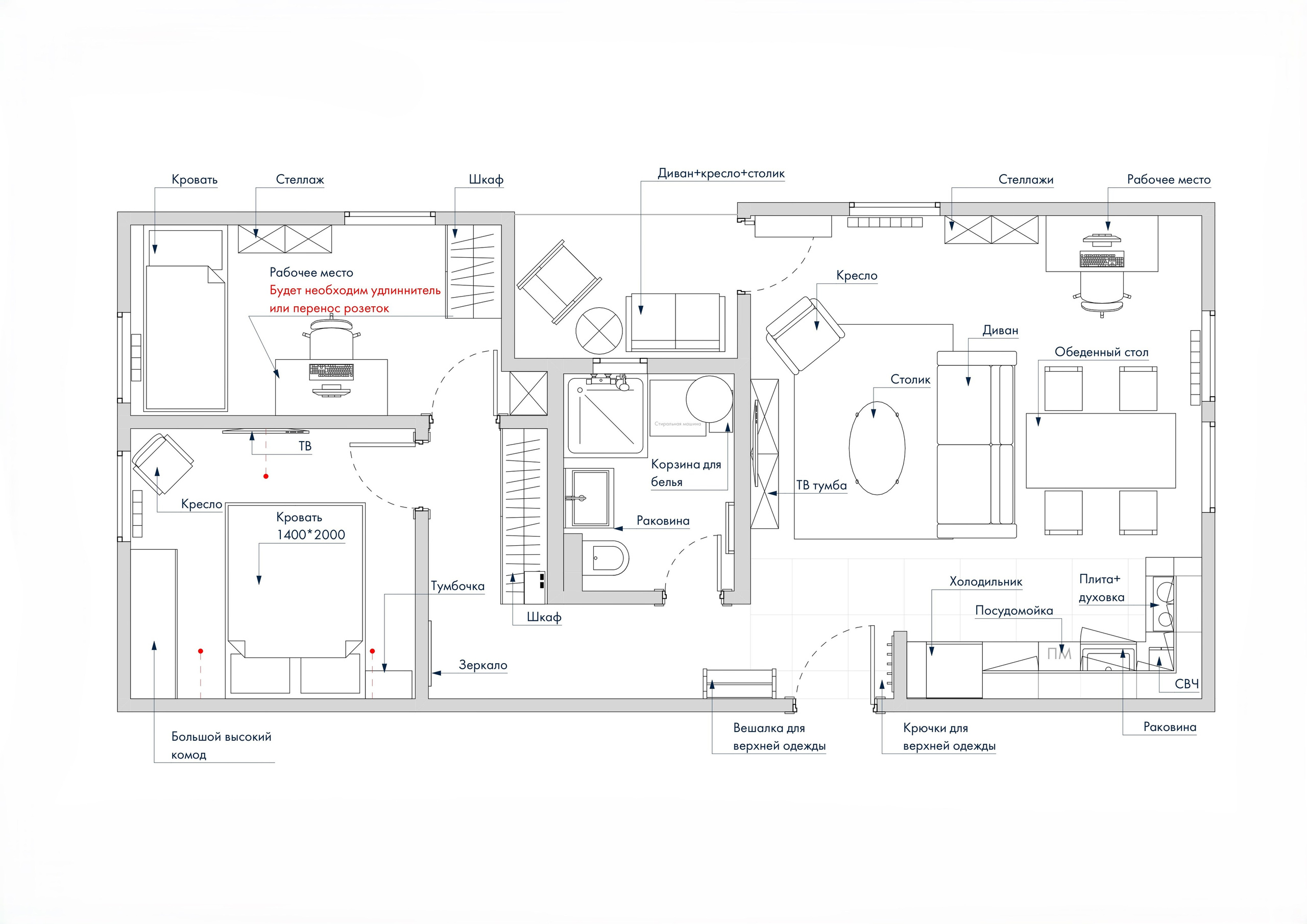
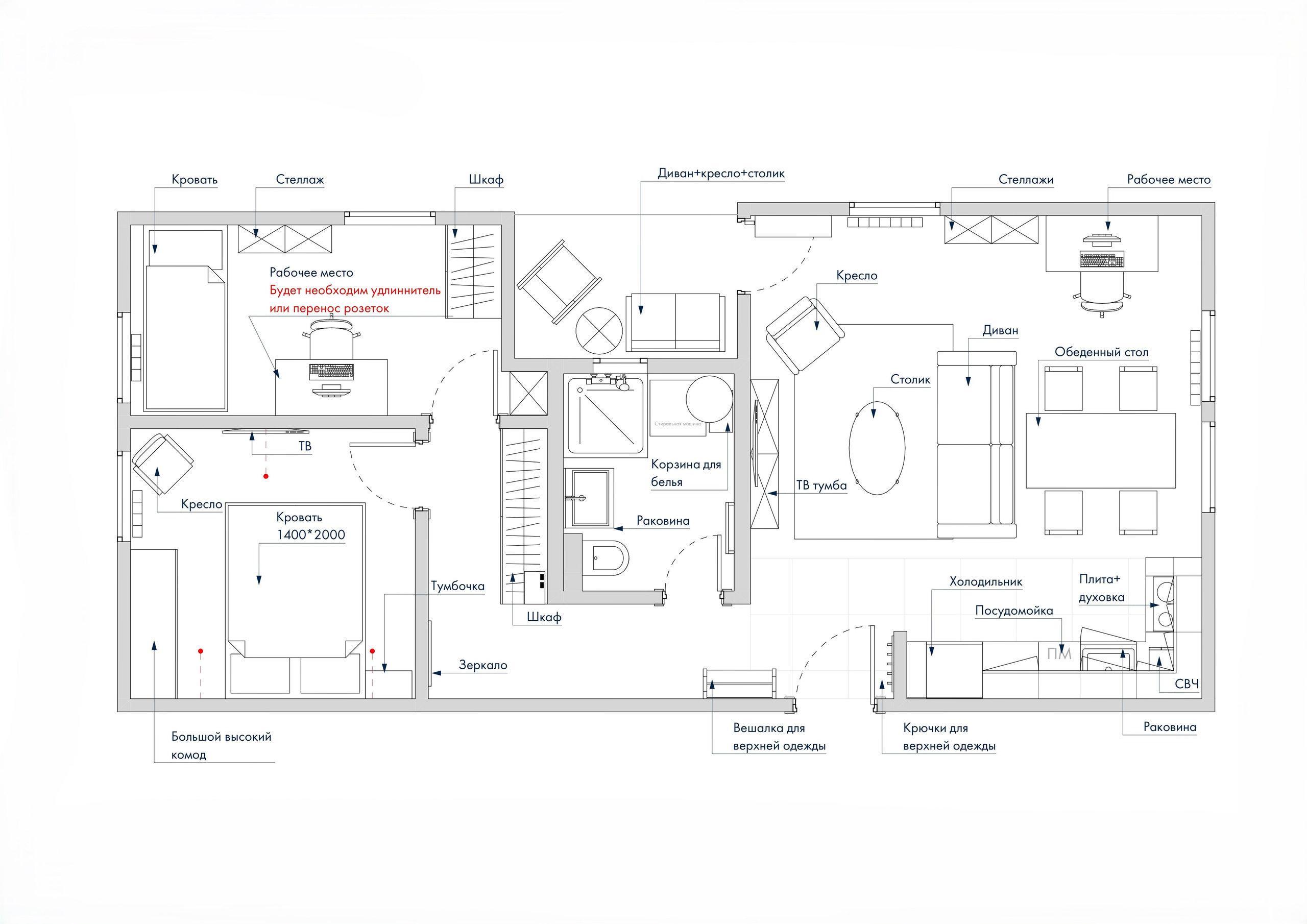
Проект Сурчин — квартира для сдачи в аренду и жизни

Площадь: 56 кв.м
Локация: Сурчин, Белград
Задача: Сделать тёплый, светлый и уютный интерьер с характером — вне зависимости от того, будет ли квартира использоваться для жизни или для аренды.  

Несмотря на то, что эта квартира потенциально будет сдаваться в аренду, заказчики решили делать проект «как для себя»: мебель на заказ, красивые текстильные акценты, интересный декор. Нам было важно уложиться в разумный бюджет, минимизировать строительные работы, но при этом не хотелось ограничиваться только IKEA.

В этом интерьере сочетаются натуральные материалы — кожа, дерево, металл, шерсть. Шерстяные ковры, кожаный карамельный диван, плитка под камень, кухня с деревянными фасадами, ротанг, стекло и металл — всё это создаёт стильное, лаконичное и по-настоящему уютное пространство.

Портфолио